Визуализация входной группы. Скриншот документации на сайте госзакупок
В Иркутске планируют отремонтировать фойе и парадное крыльцо здания правительства Иркутской области, расположенного по улице Ленина, 1а. Информация об этом появилась на сайте Единой информационной системы в сфере закупок.
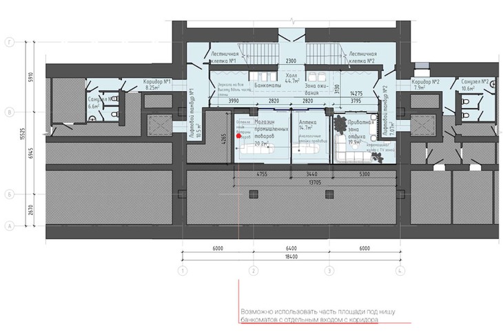
На сайте закупок представлены документы с концепцией фойе, подвала и входной группы правительственного здания. Согласно концепции, помещения должны гармонировать с фасадом строения. В документе упоминается, что в ремонте будут использовать керамогранит, дерево, металл и бетон.
Деревянные входные двери предполагается поменять на остекленные с затемнением. Согласно концепции, к парадному крыльцу пристроят козырек, колонны с кашпо и сделают декоративную подсветку. В фойе перенесут гардероб, поставят диваны для посетителей. В подвале планируют организовать магазин и аптеку или зоны отдыха с бильярдным столом и телевизором.
Подрядчика для разработки проектно-сметной документации уже нашли. Им стало ООО «Финансовая строительная компания стройэксперт» из Бурятии. Уставный капитал фирмы — 10 тысяч рублей, основной вид деятельности — инженерные изыскания, инженерно-техническое проектирование, управление проектами строительства, выполнение строительного контроля и авторского надзора, предоставление технических консультаций в этих областях.
Согласно техническому заданию, подрядчик должен предусмотреть в проекте общестроительные работы, замену проводки и освещения, план расстановки мебели и оборудования, мероприятия для доступа маломобильных групп населения. Первоначальная стоимость контракта составляла два миллиона рублей, затем она снизилась до 1,4 миллиона рублей.








-
Вениамин
29 марта 2024 в 11:11
Чтобы оставлять реакции нужно авторизоваться
Загрузить комментарииЛет 20 назад был у меня пропуск в серый дом, ходил туда обедать. Интересно (точнее противно) было слушать разговоры в столовой сотрудниц сего здания, как их бедных заставляют работать, ведь они туда попали по блату.