Мы проанализировали предложения строительных компаний, которые работают с автоклавным газобетоном и развеяли стереотип о том, что строительство индивидуального жилого дома из каменных материалов доступно только состоятельным заказчикам. Рассмотрим несколько проектов.
Проект «Байкал», дом площадью 83,5 м2 (9,8х9,4)— 1 246 000 рублей*.
Один этаж, три комнаты, один санузел. Все помещения дома удобно расположены на одном уровне, что исключает необходимость перехода с этажа на этаж. Отсутствие лестницы имеет большое значение для семей с маленькими детьми и пожилых людей. Значительно расширить жилую площадь можно за счет обустройства жилой мансарды на чердаке.
Фундамент: монолитный ленточный
Стены: автоклавный газобетон, толщина 400 мм
Перекрытия: деревянные с утеплением 150 мм
Кровля: металлочерепица
Окна: трёхкамерные ПВХ
Дверь входная: утеплённая металическая
Строительная компания: АРТ ГРУПП, газоблок-иркутск.рф.
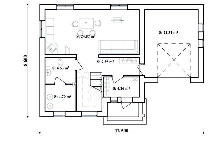
Дом с гаражом, площадь дома —159 м2 (8,6х12,5), 1 828 000 рублей*.
Два этажа, четыре комнаты, два санузла. Дом с гаражом, выполненным как пристройка с покатой крышей, благодаря чему она гармонично встраивается в общий облик здания. Минималистичный дизайн привлечет внимание любителей современной архитектуры. Кроме того, простая форма дома и двускатная кровля позволяют снизить затраты на строительные работы и содержание дома. Свободная, светлая дневная зона, которую зрительно увеличивает открытая кухня. Большая ванная комната удобно совмещена с прачечной.
Фундамент: монолитный ленточный
Стены: автоклавный газобетон, толщина 400 мм
Перекрытия: деревянные с утеплением 150 мм
Кровля: металлочерепица
Окна: трёхкамерные ПВХ
Дверь входная: утеплённая металическая
Строительная компания: АРТ ГРУПП. Телефон: 8 (3952) 684-880, газоблок-иркутск.рф.
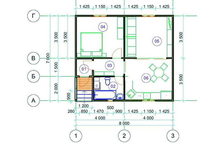
Проект серии «Функциональность», дом площадью 56 м2, 1 064 000 рублей*.
7 х 8 метра, один этаж. Уютный дом с грамотно спланированными и удобно размещенными помещениями прекрасно подойдет для комфортной жизни и семейного отдыха. Проект предусматривает две спальни, большую кухню, совмещенный санузел.
Фундамент: ленточный ж/б
Стены: автоклавный газобетон
Перекрытия: деревянные
Кровля: металлочерепица
Окна, дверь входная, сердечники, сейсмопояс
Строительная компания: «Мой новый дом», мой-новый-дом.рф.
Проект серии «Функциональность», дом площадью 77 м2, 1 463 000 рублей*.
7 х 11 м, один этаж. Ещё один вариант для комфортного проживания и семейного отдыха. Современный одноэтажный дом с тремя спальнями, большой кухней и просторной террасой. Организация пространства очень продумана, оно разделено на равные зоны.
Фундамент: ленточный ж/б
Стены: автоклавный газобетон
Перекрытия: деревянные
Кровля: металлочерепица
Окна, дверь входная, сердечники, сейсмопояс
Строительная компания: «Мой новый дом», мой-новый-дом.рф.
Проект «Эконом», дом площадью 62 м2 (7,4х8,4), 995 000 рублей*.
Одноэтажный уютный домик в этническом стиле разбит на четыре одинаково комфортные зоны. Две спальни, большая кухня и холл грамотно скомпонованы, с расчетом максимальной экономии объемов строительного материала. Экономичный выбор для жизни и отдыха.
Фундамент: ленточного типа
Стены: автоклавный газобетон, 400 мм
Перекрытия: деревянные, утепленные базальтовой плитой 150 мм
Кровля: двускатная металлочерепица
Окна: трёхкамерные ПВХ
Дверь входная: утепленная металлическая
Внутренние перегородки из автоклавного газобетона, 200 мм; полы черновые, доска 40 мм, утепленные 150 мм базальтовой плитой.
Строительная компания: Байкал, 288883.ru.
Строители рекомендуют
Автоклавный газобетон — это доступный по стоимости и в то же время надёжный, современный материал. Свои уникальные свойства он получает благодаря уникальной технологии — автоклавированию. На автоматизированном высокоточном производстве газобетон пропаривается в металлических капсулах (автоклавах) при высоком давлении и высокой температуре. Это не просто ускоряет процесс твердения смеси — в структуре газобетона происходят изменения на молекулярном уровне, и образуется новый минерал с уникальными эксплуатационными характеристиками, тоберморит. То есть автоклавный газобетон — это искусственно синтезированный камень.
Автоклавный газобетон значительно прочнее неавтоклавных аналогов и ему не грозят серьезные усадочные деформации, так как усадка составляет всего 0.4мм/м. Дома из автоклавного газобетона прекрасно держат тепло, для обогрева такого строения нужно гораздо меньше энергии, чем, например, в случае с кирпичом или брусом, что дает значительную экономию затрат при эксплуатации. При этом, благодаря хорошей паропроницаемости, дом «дышит», сохраняя благоприятный для человека микроклимат. И пожаров можно не бояться, так как автоклавный газобетон относится к негорючим материалам.
И при всех своих замечательных характеристиках автоклавный газобетон остается доступным по цене и удобным в работе материалом. Располагая бюджетом в 1–2млн руб., можно с нуля построить небольшой, но комфортный дом с черновой отделкой, идеально подходящий для молодой семьи или, скажем, пары в преклонном возрасте, которая уже вырастила детей и мечтает перебраться в пригород.
Резюмируя все вышесказанное, можно утверждать, что строительство из автоклавного газобетона оптимально благодаря таким характеристикам:
- высокая энергоэффективность;
- отличная геометрия;
- высокая скорость строительства;
- доступная цена;
- долговечность;
- пожарная безопасность;
- экологичность;
- отсутствие усадки;
При выборе проекта лучше обратиться в компанию, которая имеет опыт не только проектирования, но и строительства жилых домов из автоклавного газобетона.
Андрей Богданов, директор компании «Мой новый дом»:
— Последние два года мы отмечаем уверенный рост интереса клиентов к домам из газобетона в целом. Если раньше спрашивали в основном про брус или кирпич и доля газобетона была около 20%, то сейчас ситуация поменялась кардинально. Спрос на кирпичные дома упал, а на газобетон вырос. Газобетонные дома заказывают даже чаще, чем из бруса.
Объясняется это очень просто. За последнее время построено достаточно много домов из автоклавного газобетона. Люди ими довольны и, общаясь, рекомендуют своим друзьям и знакомым. А стоимость строительства зданий из газобетона значительно доступнее, чем кирпичных. К тому же при сегодняшних ценах на брус, автоклавный бетон по затратам стал сопоставим и с этим материалом. Но при одинаковых расходах каменный дом всё-таки основательней деревянного.
Однако стоит отметить, что далеко не все клиенты понимают, что газобетон бывает разный (автоклавный, не автоклавный), а некоторые этот материал путают с пенобетоном. Всё вышесказанное относится именно к автоклавному газобетону. Он надежен. Геометрия блоков отличная. Стены из автоклавного газобетона возводятся быстро, не нужна специальная техника и сложное оборудование. Но важна квалификация строителей и соблюдение технологии. А также перед началом работ нужно иметь полноценный проект дома.В этом случае, по нашему опыту, в «черновом» варианте дом площадью до 150 кв.м. можно построить в среднем за 3 месяца: один уходит на подготовительные работы и фундаменты, один – на коробку, один – на кровлю и остальные работы – окна, двери и так далее.
Александр Букин, генеральный директор СК «Байкал»:
— Уверен, что на сегодняшний день автоклавный газобетон — оптимальное решение. Судите сами. Цена адекватная. Материал долговечный, по сути, бетонный дом легко простоит 150 лет! И сибирские морозы ему не страшны, если использовать для стен автоклавный газобетон 400 мм. Строить из него – одно удовольствие. Блоки идеальной геометрии, легко и быстро укладываются. А отсутствие осадки позволяет сразу после завершения строительства приступить к отделке и вскоре переехать в новый дом. Кстати, расход отделочных материалов можно минимизировать,при условии, что кладкой занимались профессионалы.
Я бы посоветовал заключать договоры на строительство с надежными, уже хорошо себя зарекомендовавшими компаниями с опытом не менее трех лет. Сэкономив на окончательной сумме договора, вы можете потратить гораздо больше в процессе. Недобросовестные подрядчики часто чересчур экономят на качестве материала и даже на его количестве. А компании, которые на рынке не первый день, своей репутацией дорожат.
Евгений Никтовенко, генеральный директор ООО «АРТ ГРУПП»:
— При выборе проекта дома мы рекомендуем внимательно изучать вопрос, не «покупаться» на кажущуюся привлекательность идей «из интернета», а обращаться в компании, которые могут от и до разработать именно ваш проект, с учетом всех особенностей нашего региона. Если вы хотите построить дом необычной архитектурной формы или заказать оригинальную дизайнерскую отделку, то можете смело обращаться к нам.
Наша компания существует на рынке строительства индивидуального жилья уже более 10 лет. И при выборе направления строительства мы сфокусировались на автоклавном газобетоне. Когда мы начинали, дома из газобетона были еще новы, незнакомы. Вокруг все строили из кирпича и бруса, а ниша строительства из газобетона была свободна. Сейчас с газобетоном уже многие работают, но наша компания является одним из надежных, зарекомендовавших себя исполнителей. За многие годы работы наши специалисты обточили свое мастерство и приобрели большой опыт. Мы не боимся сложных задач и не предлагаем типовых решений.
*Все цены указаны в базовой комплектации
На правах рекламы


















-
Александр Букин
1 февраля 2017 в 11:20
Чтобы оставлять реакции нужно авторизоваться
Загрузить комментарииАкция!!! ура! Всем кто закажет в СК Байкал строительство дома- в подарок СТРАХОВКА от пожара, повреждений инженерных систем, стихийных бедствий и пр… подробное описание выложу в комментарии к этому сообщению пишу Акция для тех, контактов, которые звонят с ИРК.РУ. одобряю
тел. 288883 машу рукой